Search

Leave a Message

Thank you for your message. We will be in touch with you shortly.

Explore Our Properties

Property Description

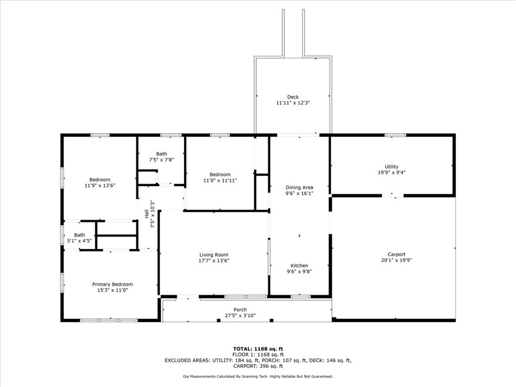
Charming 3-bedroom brick ranch home in a prime location. This remodeled 3-bedroom / 1.5 bathroom brick ranch home is nestled in a well-built established neighborhood offering modern updates throughout. Unbeatable location in the center of the county (Bounty Land community). This property is in close proximity to Walhalla, West Union, Seneca, local shopping, restaurants, the hospital, Lake Keowee, Lake Hartwell, Clemson University, and the Blue Ridge Mountains. Enjoy the brand-new deck overlooking the fenced-in backyard and ease your mind about any roof issues with this new roof installed in 2024. Inside you will find several renovations to the home. There are hard wood floors, new kitchen cabinets, new appliances, open concept to the living room from the kitchen, and a renovated bathroom. A recent appraisal and home inspection have been completed and available upon request. Call today and make this house your new home.

Overview

Property Status
Sold
MLS ID
20281890
Property Type
Residential
Year Built
1977

Features & Amenities

Total Area
1,261 Sq.Ft.
Neighborhood
Seneca
Architecture Styles
Ranch
Stories
1
Garage Spaces
2.0
Roof
Architectural, Shingle
Lot Features
Outside City Limits, Subdivision
Parking
Attached Carport
Heat Type
Heat Pump
Air Conditioning
Heat Pump
Sewer
Septic Tank
Substructure
Crawlspace
Elementary School
Ravenel Elm
Middle School
Seneca Middle
High School
Seneca High
Sales Price
$237,000

Downloads

149 Bruce Boulevard

Schedule a Tour

We would love to help you see this beautiful home! As a full-service brokerage, we can help you tour. Please submit an offer, and answer questions about the buying process.

Thank you

for your interest in 149 Bruce Boulevard, Seneca, SC 29678

149 Bruce Boulevard
Navigate
Seneca

Explore Seneca

read more

I'm Interested In

149 Bruce Boulevard

or Contact

Follow Us On Instagram